















Exceptional Historic Property Under Renovation – Onex
Specifications
11
Rooms
6
Beds
6
Baths
2
Garages
400
Surface
3608
Surface parcelle
N/A
Floors
0
Volume


Description
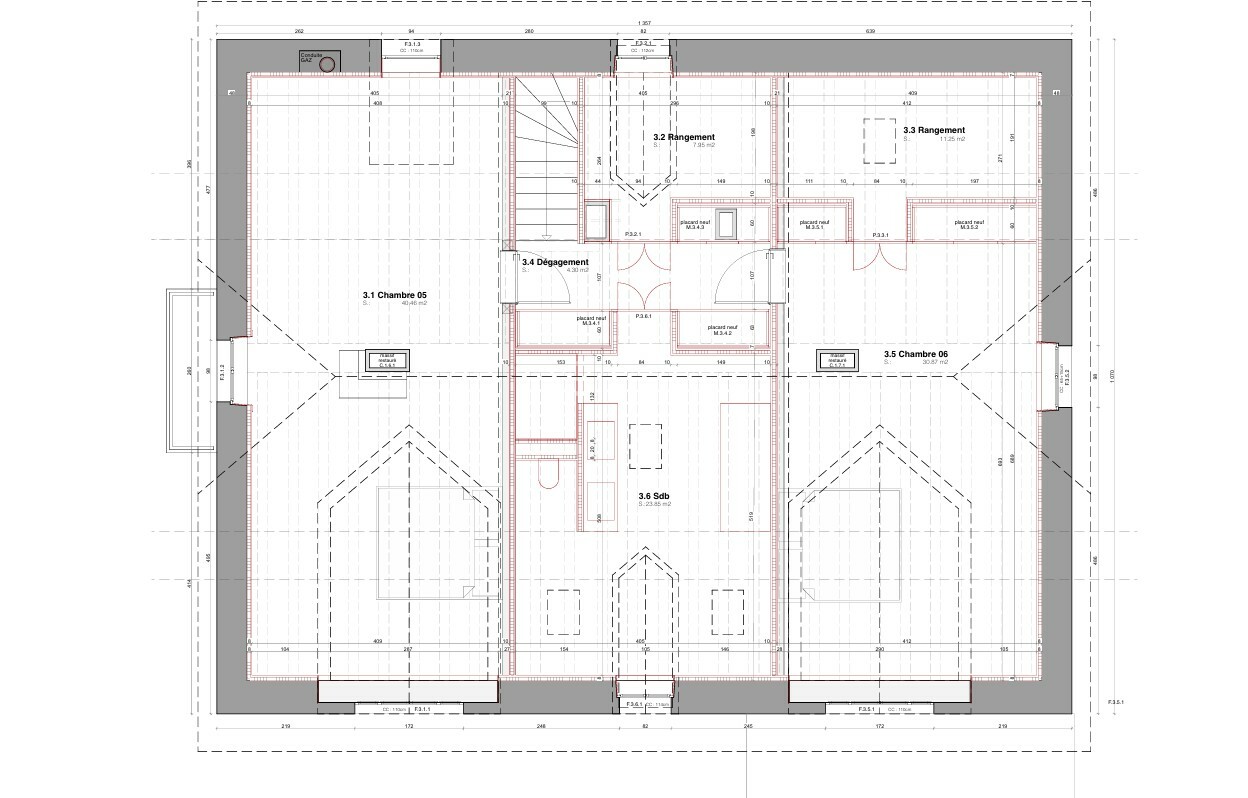
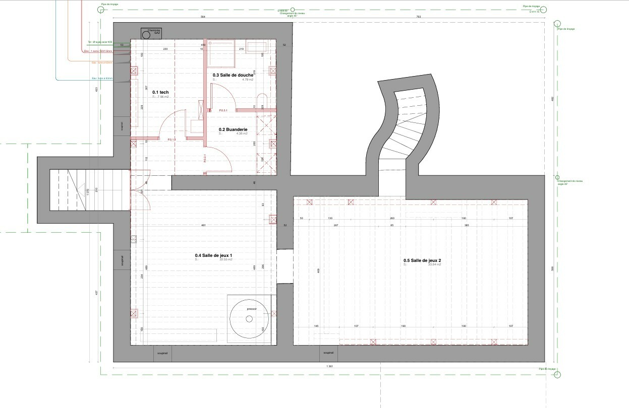
Located in the sought-after municipality of Onex, this mansion, built between 1836 and 1838, stands on a rare plot of nearly 3,608 sqm and offers an enchanting living environment, just 10 minutes from the centre of Geneva. Listed in the register of historic buildings and gardens, it combines elegance, heritage and modern comfort. The main residence, with 400 sqm of living space, is currently being restored and finished to the tenant's specifications. It offers 11 rooms, including a master suite with a library, 6 bedrooms with bathrooms, and generous living and reception areas. Charming features such as mouldings, fireplaces and a period veranda have been preserved and add a lot of character. The property will also be equipped with a 60 m² historic greenhouse, which will be converted into a winter garden, a 12-metre-long natural swimming pool, a garage, as well as several
parking spaces and landscaped green spaces.
This property, unique in its history, will charm you with its green and private setting.
The facilities incorporate the latest technologies in terms of comfort, ecology and energy efficiency: heat pump, solar panels, noble materials. Buses and all amenities are accessible on foot or by bicycle.
There is also the possibility of acquiring an adjoining plot of 1,082 sqm with a 175 sqm annex to renovate, which can accommodate family or guests in an independent and refined setting.


Aurore Lucido